The Palmer Cottage
Beautifully built and designed by award-winning architects Stagaard and Chao, the Palmer Cottage at Champions Ridge offers two home models to choose from. Both homes feature a modern open floor plan and plenty of living space, with 3 baths 3 bedrooms., Living room, dining room, covered porch, foyer, grill deck, and laundry room next to the garage.
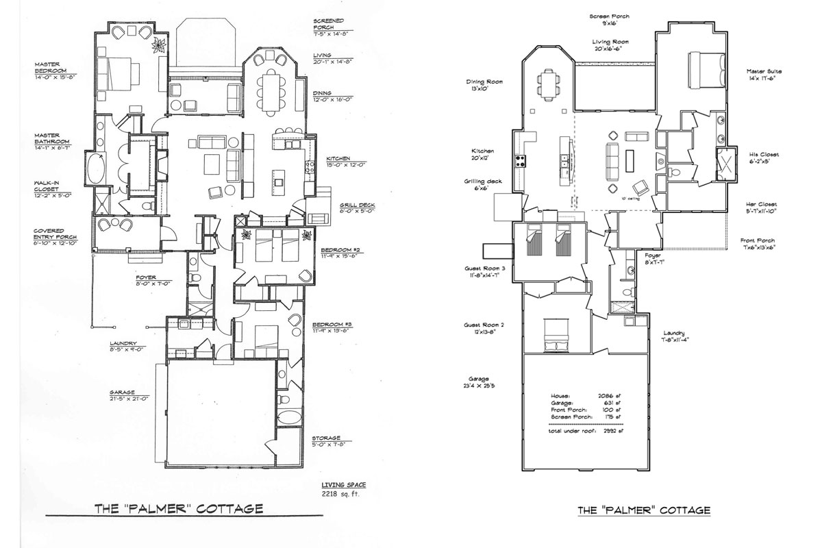
The Palmer Cottage model one features 3 bedrooms and 3 bathrooms, with the master bedroom featuring a walk-in closet and master bathroom. The second Palmer Cottage features a covered porch, 3 bedrooms and 3 bathrooms, with the master suite featuring a master bathroom, and both his and hers closets.
For measurements and details, see the blueprints and floorplans below.
Beautifully built and designed by award-winning architects Stagaard and Chao, the Palmer Cottage at Champions Ridge offers two home models to choose from. Both homes feature a modern open floor plan and plenty of living space, with 3 baths 3 bedrooms., Living room, dining room, covered porch, foyer, grill deck, and laundry room next to the garage.
The Palmer Cottage model one features 3 bedrooms and 3 bathrooms, with the master bedroom featuring a walk-in closet and master bathroom. The second Palmer Cottage features a covered porch, 3 bedrooms and 3 bathrooms, with the master suite featuring a master bathroom, and both his and hers closets.
For measurements and details, see the blueprints and floorplans below.
















