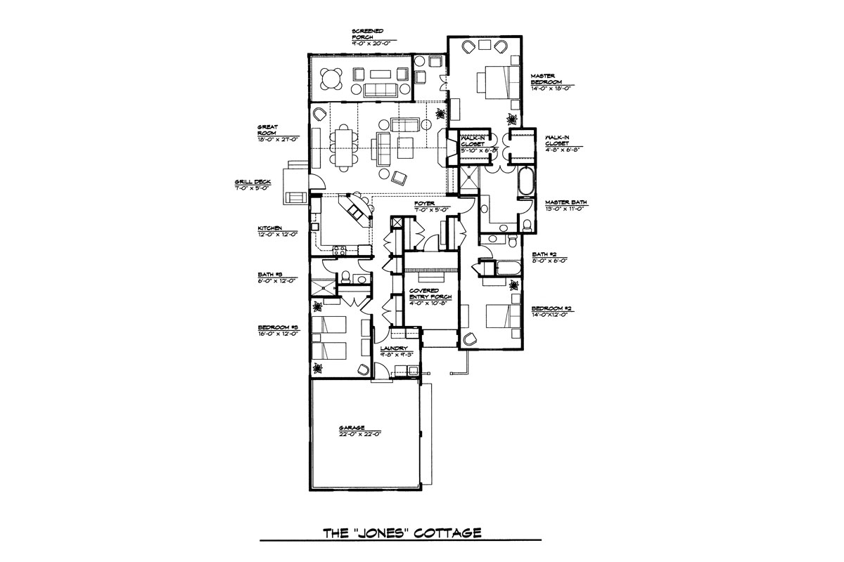
The Jones Cottage
Designed by award-winning architects Stagaard and Chao and beautifully built the Jones Cottage at Champions Ridge features a modern open floor plan and plenty of living space. This home features a large great room, covered entry porch, screened porch, grill deck with natural gas grill drop, foyer, laundry room next to the garage, 3 bathrooms and 3 bedrooms, with the master bedroom featuring with a walk-in closet and master bathroom.
For measurements and details, see the blueprints and floorplans below.
Designed by award-winning architects Stagaard and Chao and beautifully built the Jones Cottage at Champions Ridge features a modern open floor plan and plenty of living space. This home features a large great room, covered entry porch, screened porch, grill deck with natural gas grill drop, foyer, laundry room next to the garage, 3 bathrooms and 3 bedrooms, with the master bedroom featuring with a walk-in closet and master bathroom.
For measurements and details, see the blueprints and floorplans below.






















